当前位置:首页 > 提取浓缩设备> 产品中心> 提取罐 提取罐
三效浓缩提取罐的应用:对进料时的料液分布与管内的流动我们采用先进的液体分布装置,使物料能均匀分布在管内的流动我们采用先进的液体分布装置,使物料能均匀地进入各加热管,同时,浓缩罐厂家选用优良进口的内壁镜面管作加热管,使物料在管内的流动阻力小、速度快,酒精浓缩罐,不易析出结垢。为提高浓缩罐的收率,系统装备先进的雾沫捕集器,消除雾沫夹带的能力强,分离效率可达96-99%,而且阻力降小。三效浓缩提取罐适用于中药、西药、淀粉糖、食乳品等物料的浓缩,尤其适用于热敏性物料的低温真空浓缩罐。

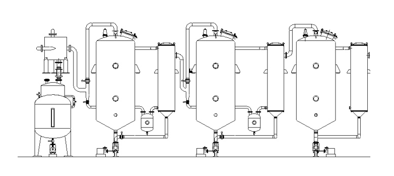
三效浓缩提取罐示意图
三效浓缩提取罐的特点
1、该设备外加热循环,受热时间短,适合于热敏,多品种物料生产。
2、蒸发能力大,速度快。
3、它与单效浓缩器和双效浓缩器相比,浓缩比重要大的多。
4、改善劳动条件,进行正常。
5、综合利用:本设备用不锈钢材料。
三效浓缩提取罐用于中药、西药、淀粉糖、食品等物料浓缩与工业有机溶剂(如酒精)的回收,用于批量、品种多的热敏性物料的低温真空外循环浓缩。